Centre Médical Universitaire Genève, Rapport succinct OPAM

Centre Médical Universitaire, Genève
©www.ge.ch

LE PROJET

CLIENT Audergon, Vionnet &
Perakis SA, Atelier d‘architecture
LIEU Genève
DUREE 2013 - 2014

Depuis 1981, la Faculté de Médecine de l’Université de Genève se situe dans les bâtiments du Centre médical universitaire. Des travaux d’agrandissement ont débuté en 2009. La construction du nouveau bâtiment 6 a commencé en 2012.

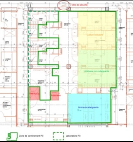
Celui-ci abritera en sous-sol un laboratoire A3 / P3 où pourront être manipulés des microorganismes pathogènes de classe 3 ainsi qu’une animalerie de classe 1. De ce fait, cette installation sera soumise à l’Ordonnance sur la protection contre les accidents majeurs (OPAM) et un rapport succinct doit être élaboré.

LES POINTS REMARQUABLES

  • La manipulation de microorganismes pathogènes nécessite de nombreux protocoles spécifiques de sécurité.
  • Le futur laboratoire P3 se situe dans un bâtiment qui accueille du public non averti et dont la capacité d’auto-sauvetage en cas d’accident peut être limitée (crèche et clinique dentaire).
  • Il n’existe à ce jour aucune méthodologie définie par l’Office fédéral de l’environnement pour l’estimation de l’ampleur des dommages relatifs à l’utilisation de microorganismes. Elle a donc dû être élaborée par nos soins, en concertation avec le client et les autorités cantonales.

Confinment des installations

Le confinement des installations à risques où sont manipulés des microorganismes pathogènes est une mesure de sécurité primordiale.

NOS PRESTATIONS

  • Acquisition et traitement des données de base relatives au projet.
  • Analyse des voies de transfert et d’exposition possibles.
  • Proposition de scénarios d’accident majeur et évaluation qualitative.
  • Rédaction du rapport succinct selon les prescriptions du Manuel II OPAM.

Autoclavage de tous les déchets

L’autoclavage de tous les déchets sortant du laboratoire P3 à une température adéquate limite tout risque de contamination externe.